The renovation and extension of a
farmhouse and outbuildings in Co.Tipperary.
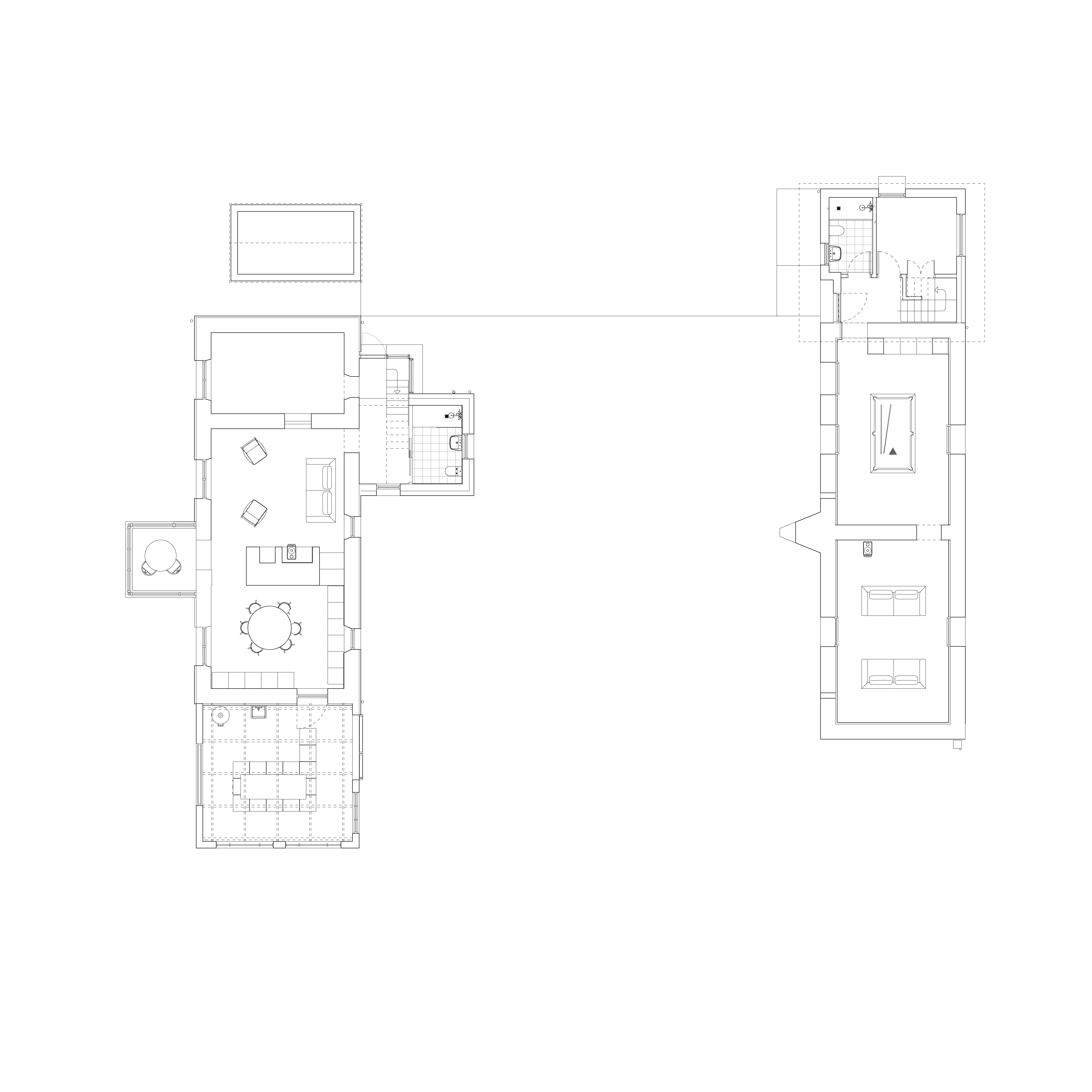
Small additions
to the existing farmhouse and conversion of the byre for additional accommodation will reinvigorate the farmyard cluster,
keeping demolition to a minimum
. Storm and wastewater treatments have been carefully considered to work within an existing mature orchard and garden.
If you’d like to discuss your project or hear more about our work please get in touch via                                         
   email                   instagram                   linkedin
If you’d like to discuss your project or hear more about our work please get in touch via                                         
   email                   instagram                   linkedin